Citycollege
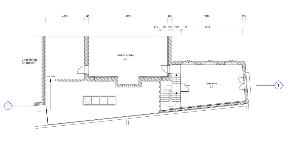
Voor het rijksmonumentale gebouw van het Lyceum Rotterdam, voorheen Citycollege St. Franciscus, aan de Beukelsdijk in Rotterdam is een ontwerp gemaakt waarmee ‘verloren’ ruimten als volwaardige lesruimte gebruikt kan worden door minder verkeersruimte en meer daglicht.
Een kleine uitbouw voor een nieuwe trap vormt daarbij de spil van het ontwerp. Deze trap ontsluit de verschillende ruimten, en herstelt bovendien de verbinding met het hoofdgebouw die er oorspronkelijk ooit was.
Door de bakstenen van de oude achtergevel in het zicht te houden, is de ingreep ‘leesbaar’.








